




















Clacton Road, Elmstead, Colchester, CO7 7AA
- Guide Price£525,000
- 4 Bedrooms
- 2 Bathrooms
- 1 Receptions
**NO CHAIN**
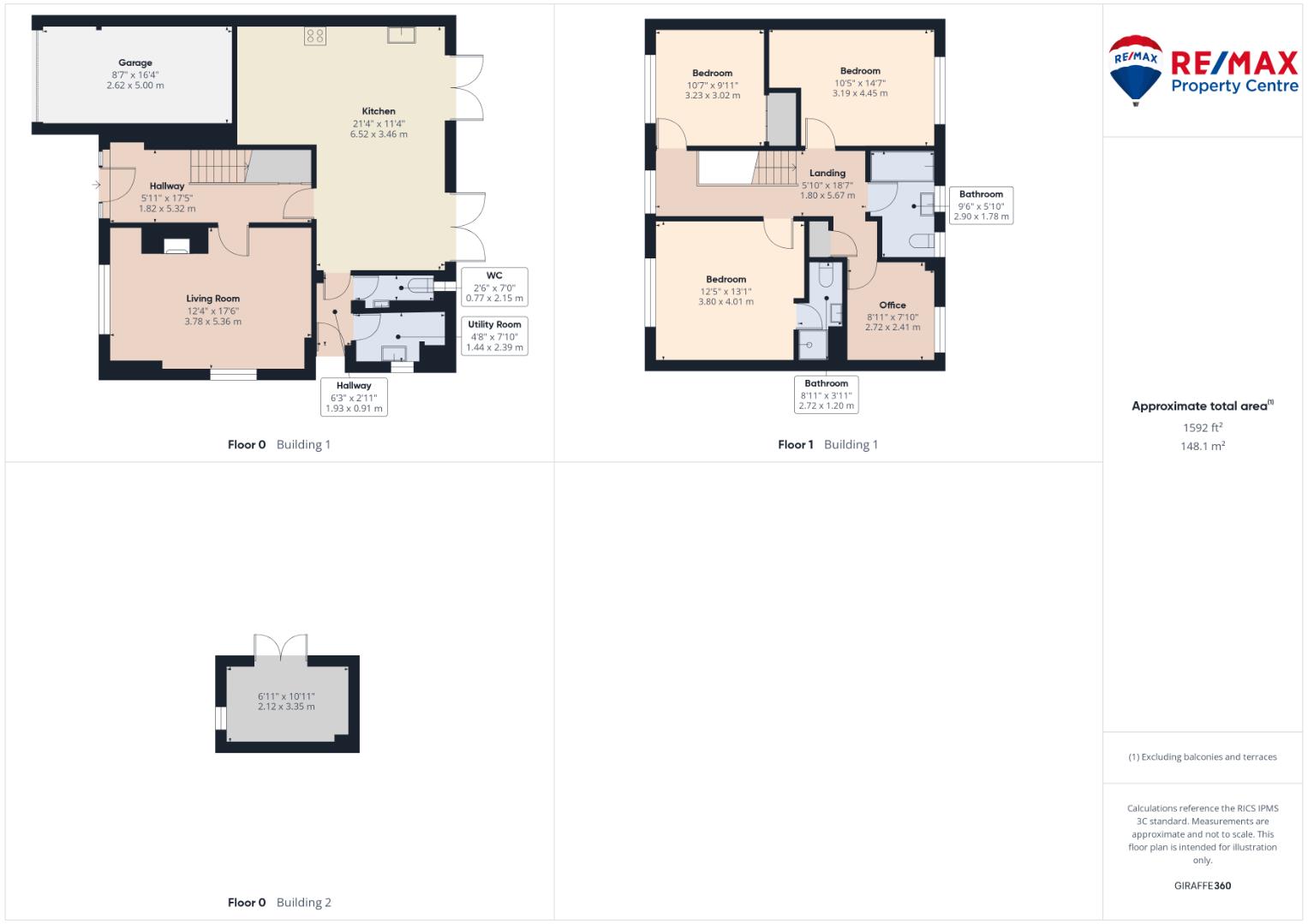
A beautifully presented and extended four-bedroom detached family home, offering generous open-plan living, excellent parking and versatile outbuildings, set within the popular village of Elmstead Market.
Inside, the home features an impressive open-plan kitchen/dining/living space with central island, double oven, integrated appliances and French doors opening to the south-facing garden, plus a separate utility room and additional reception room.
Upstairs are four well-proportioned bedrooms, including a principal bedroom with en-suite, and a modern family bathroom.
Outside, the property offers a private rear garden with two superb outbuildings, one insulated and heated, ideal as a home office or studio, and a second versatile space for hobbies, gym or play. The extensive driveway provides parking for up to eight vehicles, along with a garage.
Early viewing is highly recommended.
Property Features
- Four-bedroom detached family home ** NO CHAIN**
- Impressive open-plan kitchen, dining and living space
- High-spec kitchen with quartz worktops and integrated appliances
- Separate living room providing additional reception space
- Principal bedroom with en-suite shower room
- Private south-facing garden which is not overlooked.
- Two purpose-built outbuildings (office, studio, gym or bar potential)
- Extensive driveway parking for approximately eight vehicles
- Separate utility room with side access
- Popular Elmstead Market village location
Entrance Hall
A warm and welcoming entrance hall that immediately sets the tone for the home. There is a real sense of space and flow here, with access to the main living areas and stairs rising to the first floor
Living Room
A comfortable and cosy living room, ideal for quieter evenings or as a separate family snug. Well proportioned and finished in neutral tones, this room offers a relaxing retreat away from the main hub of the house.
Kitchen / Dining Room
The heart of the home, this impressive open-plan kitchen, dining and living space has been designed with modern family life in mind. Flooded with natural light, it’s a space that works just as well for everyday living as it does for entertaining.
The kitchen is finished to a high specification, featuring a quartz-topped central island, tiled splashbacks, inset spot lighting, hob, inset sink, double oven with plate warmer, integrated dishwasher and space for an American-style fridge freezer, complemented by black work surfaces elsewhere. The dining and seating areas flow effortlessly through French doors onto the south-facing rear garden, making this a fantastic space for gatherings, summer evenings and family time.
Lobby
A useful inner lobby connecting the kitchen, utility room and garden, enhancing the practical flow of the ground floor and keeping day-to-day life running smoothly, particularly handy after dog walks, with plenty of lovely countryside walks nearby.
WC
A smart and modern ground floor cloakroom, finished in contemporary tiling, ideal for guests and everyday family use.
Utility Room
A highly practical utility room with space for laundry appliances and additional refrigeration. With direct side access, it’s perfect for returning from walks, cleaning dogs or keeping muddy boots out of the main living areas.
First Floor Landing
A bright and spacious first-floor landing providing access to all bedrooms and the family bathroom. The layout works well for family living, offering a sense of space rather than narrow corridors.
Bedroom One
A generous principal bedroom offering a calm and relaxing space, with plenty of room for bedroom furniture and benefitting from its own en-suite shower room, ideal for a little privacy at the end of the day.
Ensuite
A modern en-suite shower room fitted with a shower enclosure, wash hand basin and WC, finished with contemporary tiling and clean lines.
Bedroom Two
A comfortable double bedroom overlooking the rear of the property, well suited to family members or visiting guests.
Bedroom Three
Another well-proportioned bedroom, ideal as a child’s room, guest bedroom or a flexible home-working space.
Bedroom Four
A versatile fourth bedroom that works equally well as a nursery, study or additional bedroom, offering flexibility as family needs change.
Family Bathroom
A modern family bathroom fitted with an extra-large double-ended bath, overhead shower, wash hand basin and WC, finished in neutral tones and designed to provide a relaxing space for a luxurious soak at the end of the day while comfortably serving the remaining bedrooms.
Garage
Rear Garden outbuilding






