
















Grafton Road, Harwich, CO12 3BB
- £175,000
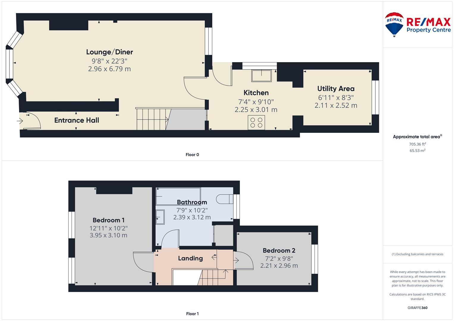
- 2 Bedrooms
- 1 Bathrooms
- 2 Receptions
Perfect for first time buyers/landlords, being sold with no onward chain this terraced home benefits from a 22′ lounge/diner, modern kitchen/utility, upstairs bathroom, 2 great size bedrooms and a sunny aspect courtyard style garden to the rear, located just a few minutes walk to the train station, town centre and beach/seafront
Council Tax: Band A
EPC: D
Heating: Gas Central Heating
Double Glazing
Property Features
- Ready Now - No Onward Chain
- Terraced Home
- 2 Bedrooms
- 22' Lounge/Diner
- Modern Kitchen/Utility
- Upstairs Bathroom
- Rear Courtyard Garden
- Close to Train Centre, Town & Seafront
- Good Condition
- Council Tax Band: A
Entrance Hall
With opening leading through to lounge/diner and stairs to first floor
Lounge/Diner
Bay fronted window to front aspect, window to rear aspect, understairs storage cupboard and door through to kitchen/utility
Kitchen/Utility Area
Fitted with a range of modern wall and base units, stainless steel sink/drainer, built in electric cooker & hob, extractor hood, spaces for fridge/freezer, dishwasher, plumbing for washing machine, windows to both side and rear aspects, side door leading to rear courtyard garden
First Floor Landing
Access to both bedrooms and bathroom, loft access hatch
Bedroom 1
With 2 windows to front aspect
Bedroom 2
With window to rear aspect
Bathroom
Spacious bathroom with suite comprising panelled bath with wall mounted shower & screen, pedestal wash hand basin, low level WC, airing cupboard and opaque window to rear aspect
Outside Areas:
To the front of the property a small courtyard area giving access to the entrance door, the rear garden is courtyard style and fully enclosed with a back gate for access






