









Princess Street, Harwich, CO12 4PF
- £130,000
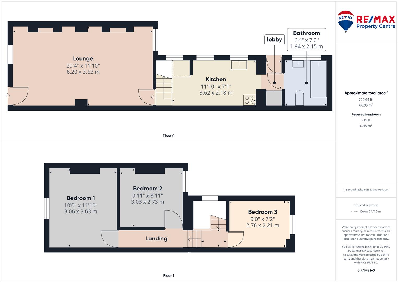
- 3 Bedrooms
- 1 Bathrooms
- 1 Receptions
No Onward Chain – In need of modernisation throughout, a 3 bedroom end terraced home with huge investment potential, with kitchen, lounge/diner, GF Bathroom, 3 bedrooms, gated side access and a fully enclosed garden
Council Tax Band: A
EPC: E
Property Features
- Great Investment Opportunity/First Time Buy
- End Terrace Home
- 3 Bedrooms
- In Need of Modernisation
- Gated Side Access
- Fully Enclosed Rear Garden
- Close to Railway Station, Retail Park & Local Shop
- Council Tax Band: A
Lounge/Diner
With windows to front and rear aspect
Kitchen
Window to side aspect, fitted with a range of wall and base units, stainless steel sink/drainer, spaces for appliances, wall mounted gas boiler
Ground Floor Bathroom
Suite comprising panelled bath, low level WC and pedestal wash basin, fully tiled walls, opaque window to side aspect
Bedroom 1
Window to front aspect
Bedroom 2
Window to rear aspect
Bedroom 3
Window to rear aspect
Outside Areas:






