





















Alma Street, Halesowen, B63 2JD, B63 2JD
- Overs Over£200,000
- 2 Bedrooms
- 0 Bathrooms
- 1 Receptions
Welcome to this inviting modern 2-bedroom detached home. Immaculately kept, this residence boasts a newly renovated kitchen, alongside generously sized rooms for relaxation and entertainment. Convenience is key with a downstairs toilet. Outside, a charming garden beckons, offering a tranquil retreat.
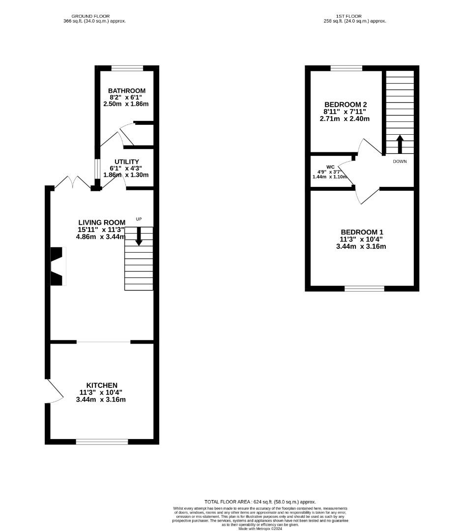
The property briefly comprises, newly fitted kitchen, ground floor bathroom, spacious lounge with log burning stove and a convenient utility room
To the first floor; two generously sized bedrooms, further storage and additional WC.
Property Features
- Two spacious bedrooms
- Detached family home
- Downstairs bathroom with additional WC
- Newly fitted kichen
- Mature, larger than expected rear garden
- All-electric
- EPC Rating
Approach
Being set back from the road, pebbled driveway, side access gate to the rear garden and a door leading to the kitchen
Kitchen
With a door leading from the front driveway, open plan to living room, fitted with a range of wall and base units with worktops, tiled splashback surround, integrated appliances, hob with extractor above, stainless steel sink with mixer tap and a double glazed window to the front
Living Room
Being open plan to the kitchen with a door leading to the utility, solid fuel burning stove with hearth and decorative mantel, stairs leading to the first floor accommodation, a double glazed patio door to the rear garden and an electric heater
Utility
With a door leading from the living room, a door leading to the bathroom, utility outlet points with worktops and a double glazed window to the side
Bathroom
With a door leading from the utility, WC, hand wash basin, bath with electric shower over, store cupboard, a double glazed window to the rear and an electric wall mounted heater
Landing
With stairs leading from the lounge, doors to various rooms
Bedroom One
With a door leading from the landing, a double glazed window to the front and an electric wall mounted heater
Bedroom Two
With a door leading from the landing, a double glazed window to the rear and an electric wall mounted heater
WC
With a door leading from the landing, WC and hand wash basin with tile splashback
Garden
With a patio door leading from the living room, patio area to the front with lawn beyond, mature shrubbery throughout and a side access gate to the front
Money Laundering Regulation
At RE/MAX Prime Estates, we adhere to the strict guidelines outlined in the MONEY LAUNDERING REGULATIONS 2017. As per legal requirements, we are obligated to verify the identity of all purchasers and the sources of their funds to facilitate a seamless purchase process. Therefore, all prospective purchasers must furnish the following documentation:
- Satisfactory photographic identification.
- Proof of address/residency.
- Verification of the source of purchase funds.
Please be advised that RE/MAX Prime Estates reserves the right to utilize electronic verification methods to authenticate any required documents. A nominal fee of £36 including VAT per person will be applicable for this service.
Rest assured that these measures are in place to ensure compliance with regulatory standards and to safeguard the integrity of all property transactions.






