


















Marita Close, Dudley, DY2 9LF, DY2 9LF
- £199,995
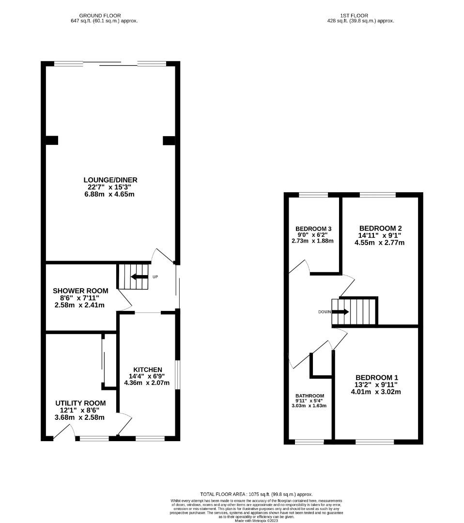
- 3 Bedrooms
- 2 Bathrooms
- 1 Receptions
Presenting a spacious and extended three bedroom semi-detached family home with no upward chain situated on Marita Close in Netherton, Dudley. This property offers modern living and a range of features that make it an attractive choice for families.
The property is thoughtfully designed, to the ground floor there is kitchen with separate utility, extended family lounge diner and a modern fitted wet room. On the first floor, you’ll find two comfortable double bedrooms, providing ample space for family members. Additionally, there’s a smaller third bedroom that can serve as a child’s room, home office, or guest room.
The low-maintenance and private rear garden offer an outdoor retreat for relaxation and recreation. The convenience of off-road parking for multiple cars adds to the practicality of the property. One notable advantage of this property is that it comes with no upward chain.
While the property offers ample potential, it is important to note that it is in need of some modernisation, providing an opportunity for buyers to customize and upgrade to their preferences.
Situated in a quiet cul-de-sac location, this home provides a peaceful and family-friendly environment, making it a great place to call home.
Property Features
- Three bedroom semi detached family home
- Extended spacious living dining room to rear
- Modern fitted downstairs wet room
- Low maintenance prviate rear garden
- Off road parking for multiple cars
- Fitted kitchen with separate utility room
- Two double bedrooms with further third
- Offered with no upward chain
- EPC TBC
To the front of the property
With a gate to front, paved driveaway for multiple cars, chipping stone boarders, side access with separate door to the entrance porch and a door to the front of the property leading to the access through the utility room.
Entrance Porch
With a door leading from the front, sliding door to side leading to the entrance hall and a door to rear providing access to the garden.
Entrance Hall
With a sliding door leading from the entrance porch, doors leading to various rooms, opening through to the kitchen, stairs leading to the first floor landing and a central heating radiator.
lounge Dining Room
With a door leading from the entrance hall, electric fire with decorative surround, opening through to spacious dining area, double glazed sliding door and windows to rear and two central heating radiators.
Kitchen
With an opening from the entrance hall, fitted with a range of wall and base units with work tops, breakfast bar, stainless steel sink and drainer with tiled splash back, space for appliances, space for cooker with stainless steel upstand and extractor hood, double glazed windows to front and side, recessed spotlights, door leading to utility room and a central heating radiator.
Utility
With a door leading from the kitchen, wall and base units with work top, space for appliances, combination boiler, storage cupboard with sliding door, double glazed window to front, door leading to the driveway and a central heating radiator.
Wet Room
With a door leading from the entrance hall, UPVC panelled throughout, wash hand basic set into vanity unit, WC, electric shower, recessed spotlights and further storage space.
Landing
With stairs leading from the entrance hall, doors leading to various rooms, loft access and an airing cupboard.
Bedroom One
With a door leading from the landing, fitted wardrobes, double glazed window to front and a central heating radiator.
Bedroom Two
With a door leading from the landing, double glazed window to rear, over stairs storage space and a central heating radiator.
Bedroom Three
With a door leading from the landing, double glazed window to rear and a central heating radiator.
Bathroom
With a door leading from the landing, fully tiled surround, WC, bath unit with shower, wash hand basin set into vanity unit, recessed spotlights, double glazed window to front and a central heating radiator.
Garden
With doors leading from the lounge diner and also entrance porch, paved patio with steps leading to further patio area, small artificial lawn beyond with green house, chipping stone boarders and mature shrubs with further private area towards the rear of the garden.






