



























Old School Court, Ramsey Village, CO12 5FR
- £475,000
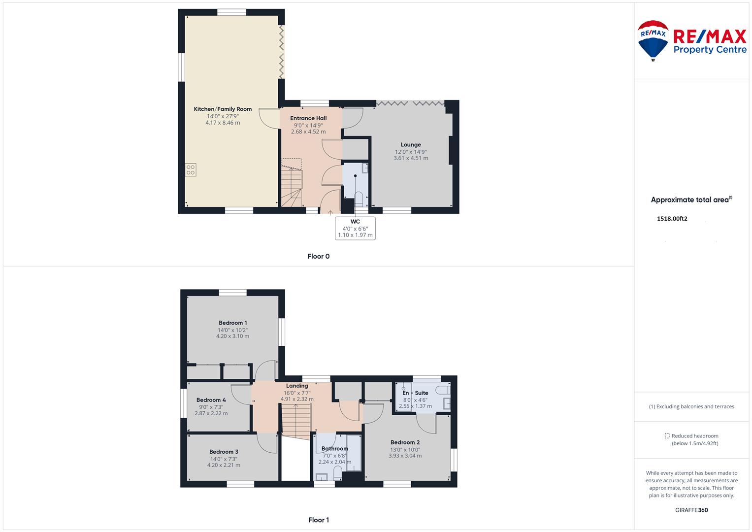
- 4 Bedrooms
- 2 Bathrooms
- 2 Receptions
Guide Price £475,000 – £500,000
** MOVE-IN READY NOW ** Welcome to Sunnymede, an executive 4 bedroom detached home offering over 1500 Sq.ft of luxury space, with double garage and off road parking located in an exclusive mews development in the desirable Ramsey Village. Offering stylish family living with open plan kitchen/family room, bi-fold doors leading to the garden, separate lounge, ground floor cloakroom, on the first floor are 4 well sized bedrooms (1 en-suite), and a family bathroom
Property Features
- FOUR BEDROOM DETACHED
- EXCLUSIVE MEWS DEVELOPMENT
- VILLAGE LOCATION
- HIGH SPECIFICATION FINISHES
- DOUBLE GARAGE + PARKING
- OPEN PLAN KITCHEN/FAMILY ROOM
- FAMILY BATHROOM + EN SUITE SHOWER ROOM
- GROUND FLOOR CLOAKROOM
- 10 YEAR ADVANTAGE WARRANTY
- VIEWINGS STRICTLY BY APPOINTMENT ONLY
Set in the peaceful village of Ramsey, Old School Court is a collection of just 10 high specification family homes, these exceptional homes have been built to the highest standards, offering modern living space with a high end luxury feel and attention to detail, the development offers both 3 & 4 bedroom homes
Location
The picturesque village of Ramsey, an area that has so much to offer due to it's beautiful surrounding countryside, perfect for walks and tranquility, but also nearby access to the A120 with links to the A12 to Colchester, Stansted Airport and London.
With historic Harwich in close proximity offering a delightful selection of bars and restaurants, shops, award winning beach and seafront and many other local amenities, Harwich Port is also close by allowing convenient travel to the Hook of Holland
Train Stations nearby include Wrabness, Dovercourt and Harwich all offering links to London Liverpool Street
Entrance Hall
Ground Floor Cloakroom
Lounge with bifold doors to garden
Kitchen/Family Room with Bi fold doors to garden
Bedroom 1
Bedroom 2
En-suite Shower Room
Bedroom 3
Bedroom 4
Family Bathroom
VIEWINGS STRICTLY BY APPOINTMENT ONLY
Agents Note:
All images, CGI's and dimensions are provided for guidance purposes only, final appearance may vary






