











Albert Street, Harwich, CO12 3HY
- £170,000
- 3 Bedrooms
- 2 Bathrooms
- 2 Receptions
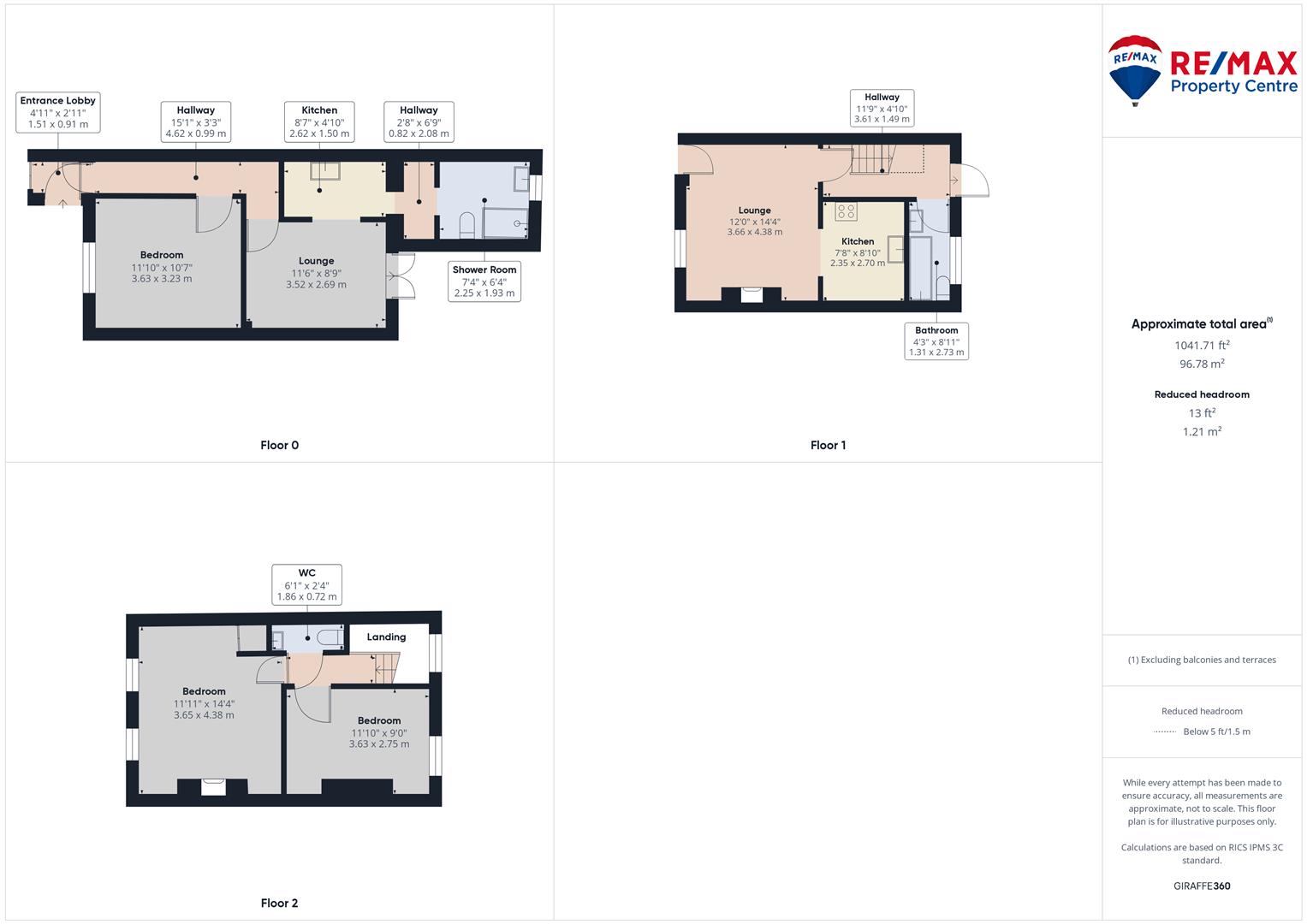
** Huge Investment Potential ** Cash Buyers Only – With 3/4 bedrooms and over 1,040 sq.ft of versatile living space, this spacious 3 storey town house has been converted by the current owners to provide 2 separate living spaces both with their own entrances, however could easily be changed back to one dwelling if desired, ideally located close to Town Centre, Railway Station and the A120
EPC: C
Property Features
- 3 Storey Terraced Property
- 3/4 Bedrooms
- 2 New Kitchens
- New Bathroom + Shower Room
- 2 Entrance Doors
- Over 1,040 sq ft. of Versatile Living Space
- Council Tax Band A
- Front & Rear Gardens
- Huge Investment Potential - Cash Buyers Only
- Close to Railway Station, Town Centre & A120
Lower Ground Floor Accommodation:
Entrance Hall
Bedroom
Lounge with French Doors to Garden
Kitchen
Newly Fitted Shower Room
Ground Floor Accommodation:
Entrance Hall
Lounge with Feature Fireplace
Newly Fitted Kitchen
Newly Fitted Bathroom
Stairs to 1st Floor and Access to Roof Terrace
First Floor Accommodation:
2 x Double Bedrooms
WC
Outside Areas:
There are garden areas both to the front and rear of the property
Raised roof terrace with steps to ground floor garden area
Agents Note:
This property has already been part re-refurbished by the current owners and has huge rental potential, alternatively could also be reinstated as one dwelling if required






